Обща информация
Допълнителна информация
Компания `ЕКС` представя на Вашето внимание тристаен апартамент в жк. Хаджи Димитър.
МЕСТОПОЛОЖЕНИЕ: Намира се в близост до детска градина, училище и на пешеходно разстояние на метростанция Хаджи Димитър.
СТРОИТЕЛСТВО: Апартаментът е ситуиран на 4-ти етаж в тухлена сграда.
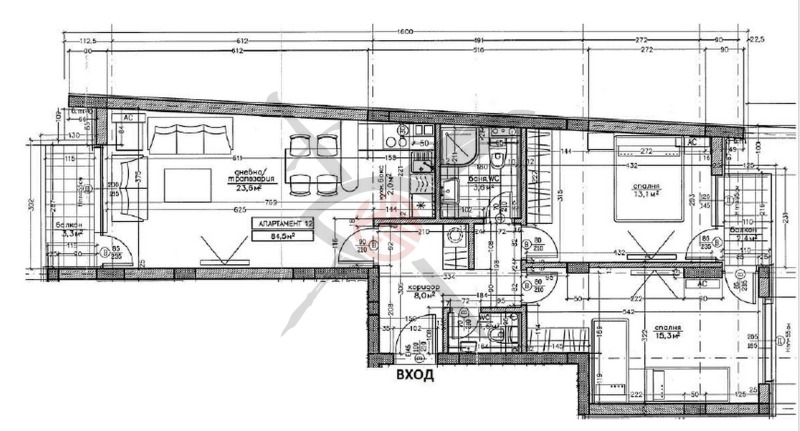
РАЗПРЕДЕЛЕНИЕ: Жилището разполага с площ от 102 кв. м. разпределен във входно антре, хол с кухненска част, две спални, баня с тоалетна, отделна тоалетна и две тераси.
ОСОБЕНОСТИ: Към апартамента има и подземен склад(мазе).
С възможност за покупка и на двоен подземен гараж.
Заповядайте да Ви го покажем. Използвайки нашите услуги Вие ще превърнете закупуването на новия си дом в едно приятно изживяване, ще получите персонален консултант, съдействие при кандидатстване за кредит от всички банки в България, интериорни дизайнери и екип, който да се погрижи за нужните документи по Вашата сделка. На Ваше разположение сме всеки ден, от понеделник до неделя от 09:00 до 20:00ч. Възползвайте се от безплатна консултация в наш офис, където ще ви спестим време и ще ви запознаем с всички актуални имоти в България, отговарящи на Вашето търсене. Свържете се с нас на 0887 77 99 90 или на 0886 12 12 57 и цитирайте кода към имота: 102236

