Брокер
Обща информация
Допълнителна информация
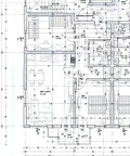
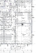
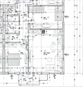
код 21583 Акцент Инвест предлага на Вашето внимание тристаен апартамент на 5 етаж в нова жилищна кооперация с асансьор. Обща площ на имота ― 89, 00 кв. м. Ново строителство.
Апартаментът има следното разпределение: коридор, слънчев хол с кухня, две спални, баня и WC, WC, килер, тераса. Апартамента ще се предлага по БДС в следният вид: под циментова замазка, стени и тавани гипсова шпакловка, изградени електро и ВиК инсталации, монтирани входни и интериорни врати.
На разположение на живущите има подземни и надземни паркоместа, които могат да се закупят отделно на цени от 25 000 до 28 000 евро.
Планирано завършване на сградата:
Акт 14 април 2026 г. ; Акт 15 октомври 2027 г.
Въвеждане на сградата в експлоатация декември 2027 г. Отличен потенциал за инвестиция и отдаване под наем. Тихо, спокойно място с лесна транспортна и пешеходна достъпност. Наблизо се намират: спирки за градския транспорт, супер маркети, офиси на застрахователни компании и клонове на банки, ресторанти и сладкарници. Лесен достъо до центъра на града. Отлично комуникативно и привлекателно място с цел целогодишно живеене или отдаване на имота под наем.







