Посетена 61 пътиПубликувана в 10:37 на 27 Януари 2026
Обща информация
Квадратура74 m2
Етаж2-ри
ГАЗНЕ
ТEЦНЕ
Допълнителна информация
ПРЕД АКТ 15!!! КВ. ОСТРОМИЛА!!! ЗАТВОРЕН КОМПЛЕКС!!!
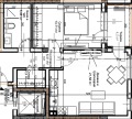
Представяме на Вашето внимание двустаен апартамент в района на кв. Остромила, със следното разпределение: просторна дневна с излаз на тераса, спалня с излаз на тераса, баня с тоалетна. Апартаментът се намира в нова сграда, с акт 14, удобства и предимства: Ниско застрояване, Осигурено 100% паркиране, Видеонаблюдение, Зона за отдих, Открито пространство за спорт, Детска площадка и др.
За Ваше улеснение прилагаме схема с разпределение на имота. Обадете се сега и цитирайте следния код: 138601
Особености
Тухла







