Обща информация
Допълнителна информация
✔ Цена - директно от инвеститор ✔ Доказан строител✔ Разсрочени схеми на плащане! ✔ Гарантирана цена до Акт 16
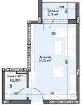
➡ Състои се от баня с тоалетна, дневна с кухня и трапезария, тераса и е с обща площ от 45, 53 кв. м.
Локация: кв. Тракия
На 250м от Хотел SPS, Тракия
На 250м от магазин Kaufland
На 600м от мол Пловдив плаза
На 600м от магазин Метро
Строителство:
Стени и тавани - гипсова бяла мазилка; под - циментова замазка;
Дограма с троен стъклопакет;
Тераса - гранитогрес; стени и тавани - фасадна мазилка с монтирани осветителни тела; парапет - по детайл;
Входна врата - блиндирана, MDF;
Електро инсталация - изградена с ел. табло, съгласно проект - съоръжения с предпазители, дефектно токови защити и електромери, с монтирани ключове и контакти;
ВиК инсталация - до тапи, с монтиран водомер с дистанционно отчитане;
ОВК - изпълнена съгласно проекта, включваща изводи за външни климатични тела, позиционирани на строго определени за целта места, по едно за всеки самостоятелен обект;
Инсталация за видеодомофон;
Кабелна инсталация - извод за кабелна телевизия и интернет;
Фасада - топлоизолация; цветна мазилка; HPL, еталбонд, окачена алуминиева фасадна система Е 85 със стъклопакет;
Общи части на сградата - напълно завършени
- стълбища и площадки - под - гранитогрес, камък; стени и тавани - гипсова мазилка и боя; електроинсталация с ключове и осветителни тела съгласно проект;
- входна врата с контрол на достъп;
- пътнически асансьори - електрически;
- пощенски кутии;
✔ Паркинг: Възможност за закупуване на паркомясто/гараж.
✔ Апартаментите се издават: шпакловка и замазка, изградена ВиК, ел. инсталация с монтирани ключове и контакти и ел. табла, входни блиндирани врати;
➡ Alpha Real Estate, специализиран посредник на водещите строителни фирми, член на Националната браншова организация НСНИ. За още предложения ново строителство в гр. Пловдив посетете нашия сайт: https://alphaestate.bg
Реф. 2350




