Обща информация
Допълнителна информация
🙏 С всяка сделка ние от Diamond Home помагаме! 💎
Даряваме процент от нашата комисионна на Фондация Вярвай - организация, която подпомага хора, борещи се с рак.
Вярваме, че заедно можем да направим нещо повече от просто бизнес - можем да дадем надежда. ❤ ️
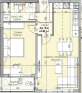
🏠 Diamond Home Ви представя двустаен апартамент в модерна бутикова сграда, разположена в кв. Кършияка!
- 📐 разпределение: Дневна с трапезария, спалня, баня и тоалетна и лоджия
- 🧭 изложение: Юг
- 📍 локация: Местоположението на комплекса безспорно е една от най-привлекателните му характеристики, която включва отлично развита инфраструктура, близост до река Марица, Парк Сърнена гора, Хотел Санкт Петербург , множество търговски обекти и заведения със социални функции като училища и детски градини, което гарантира стандарта на отлично функционираща градска среда.
💎 Мисията ни е да създадем доверие във Вас, като Ви предоставяме най-високо качество на обслужване!
💎 Разполагаме с над 1000 имота!
💎 Услугите, които предлагаме:
- Консултация от старши брокер
- Съдействие с кредитен консултант относно финансирането Ви
- Договаряне на възможно най-изгодни условия за Вас
- Оформление на цялата документация по сделката
- Агенцията работи с утвърден юрист в бранша
- Управление на всякакъв вид имоти
- Безплатна консултация с наш брокер
💎 За информация или оглед относно този или друг имот не се колебайте и се свържете с нас!
ОФЕРТА НОМЕР: 241597


