Брокер
Обща информация
Допълнителна информация
Forton Homes представя двустаен апартамент в новострояща се сграда на бул. Братя Бъкстон 4, кв. Бъкстон, с бърз директен достъп до основни пътни артерии и градски транспорт.
Апартаментът е със застроена площ 62. 67 кв. м, обща площ 69. 58 кв. м, разположен на 4-ти етаж от 8 с източно изложение.
Имотът се предлага от обезщетен собственик.
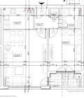
Жилището е с функционално разпределение: дневна с кухненски бокс, отделна спалня, баня с тоалетна, входно антре, лоджия (приложена схема).
Сградата е на доказан инвеститор и строител с над 20 години опит и залага на реални технически предимства:
- индивидуална термопомпа за всеки апартамент
- подово отопление + конвектори за охлаждане
- специална звуко- и топлоизолация между отделните апартаменти
- висок клас алуминиева дограма
- зидария с керамични тухли Wienerberger
- вентилируема фасада
Проектът предвижда подземен паркинг, както и търговски площи на партерно ниво, което добавя удобство за живущите.
Възможност за покупка на външно паркомясто.
Имотът е подходящ както за лично ползване, така и за инвестиция, с оглед локацията, параметрите и качеството на сградата.
Водещ консултант: Мила Босолова
+359 889 77 50 10
mila. bossolova@fortonhomes. com


