Брокер
Обща информация
Допълнителна информация
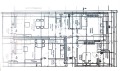
БИЛДИНГ БОКС предлага за продажба тристаен апартамент с АКТ 16, който е в процес на обзавеждане в кв. ' Тракия' .
Предимства на имота:
- ЛОКАЦИЯ: В непосредствена близост до Колодрума, Ритейл Парк и Томов Плаза.
- РАЗПРЕДЕЛЕНИЕ: Просторна всекидневна с кухненски бокс, родителска спалня, втора спалня и дрешник към нея, самостоятелна баня, антре, втора тоалетна с перално помещение и две тераси.
- ЕТАЖНОСТ: 7-ми етаж от общо 13.
- ОТОПЛЕНИЕ: Електричество.
- ИЗЛОЖЕНИЕ: ЗАПАД/ИЗТОК.
- ПАРКИРАНЕ: С възможност за закупуване на надземни паркоместа и гаражи.
- СГРАДА: Луксозни общи части, два асансьора и търговски площи на партера.
- ДОПЪЛНИТЕЛНО ПРЕДИМСТВО: АПАРТАМЕНТЪТ ЩЕ БЪДЕ ОБЗАВЕДЕН В РАМКИТЕ НА 2 МЕСЕЦА, КОЕТО ПОЗВОЛЯВА ОБЗАВЕЖДАНЕТО ДА Е ПО ВАШ ИЗБОР.
* НИСЪК ПРОЦЕНТ ОБЩИ ЧАСТИ, НАЙ-НИСКА ЦЕНА В РАЙОНА.
БИЛДИНГ БОКС предоставя безплатна консултация и съдействие при финансиране на избрания от Вас имот.
Оферта 26094







