Продава 2-СТАЕН, град София, Левски Г ID 11541464

145 000 €283 595.35 лв.Не се начислява ДДС

Агенция

ТИАМО ЕСТЕЙТ, град София
ТИАМО ЕСТЕЙТград София 'бул. 'Васил Левски' 100Б, ет.1, ап.12
Посетена 5 пътиПубликувана в 18:43 на 16 Октомври 2025

Обща информация

Квадратура58 m2
Етаж4-ти
ГАЗНЕ
ТEЦНЕ

Допълнителна информация

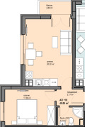
Двустаен апартамент - кв. Левски Г, София

Просторен Двустаен апартамент 49 кв. м. чиста площ, 58 кв. м. с общите части в новострояща се 9-етажна сграда, с предвидено въвеждане в експлоатация: 2027 г. Идеален за младо семейство или инвестиция.

Дневна с трапезария и кухня (20. 22 кв. м)
1 спалня (11. 26 кв. м)
Баня с тоалетна, преддверие и балкона
Изложение: изток
Отопление: електричество
Етап на строителство - преди Акт 14
В цената е включено избено помещение

Ключово предимство - метро линия: М3
Продължението на линия М3 към ж. к. Левски Г се изгражда и се очаква да бъде пуснато до 2025 г. По бул. Владимир Вазов се предвиждат три станции на пешеходно разстояние:
МС Владимир Вазов - ~450 м
МС Тракия - ~500 м
МС Стадион Георги Аспарухов - ~1. 5 км

Защо да го изберете:
Сега е моментът за инвестиция преди пускането на линия М3.
Функционално и практично разпределение - бързо отдаване под наем.
Качество на изпълнение от доказан строител; ниски бъдещи разходи.
Отлична локация до магазини, паркове и спортни съоръжения.

За проекта
9-етажна сграда от утвърден строител; апартаментите са проектирани с акцент върху удобство и изпълнени с качествени материали.

Търсете предимството на ранната покупка - вържете се с нас за час за оглед!

Реф. 1141

Особености

Асансьор • Тухла

Страница на обявата

Агенция

ТИАМО ЕСТЕЙТ, град София
ТИАМО ЕСТЕЙТград София 'бул. 'Васил Левски' 100Б, ет.1, ап.12

Споделяне

Преглeд на обявите по населени места: