Брокер
КантораЛичен телефон: 0882 121 457
Посетена 110 пътиПубликувана в 01:14 на 11 Март 2026
Обща информация
Квадратура40 m2
Етаж7-ми
ГАЗНЕ
ТEЦНЕ
Допълнителна информация
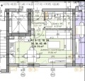
Представяме Ви Едностаен апартамент на шпакловка и замаска в нова сграда в кв. Южен. Апартаментът е на среден етаж и с южно изложение. Агенцията разполага с ключ.
? Характеристики на имота:
Площ: 41 кв. м. , изба - 2. 30 кв. м.
Етаж: междинен - 7 ет.
Изложение: юг
Състояние: на шпакловка и замаска, с поставена входна врата и изградени инсталации
Сградата е с контролиран достъп, асансьор и добри общи части
Подходящ както за живеене, така и за инвестиция
В близост до супермаркети, спирки на градски транспорт, училища, паркове и нови жилищни комплекси. Отлична инфраструктура и бърз достъп до централни части на града
Обади се сега и цитирай този код 678257
Особености
Асансьор • Тухла
Страница на обявата
Брокер
КантораЛичен телефон: 0882 121 457

