Посетена 159 пътиПубликувана в 08:56 на 19 Февруари 2026
Обща информация
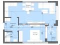
Квадратура70 m2
Етаж5-ти
Допълнителна информация
Титан Пропъртис има удоволствието да Ви двустаен апартамент в кв. Кършияка.
В близост са разположени спирки на градски транспорт, детски градини, училища, търговски обекти.
Имотът е ситуиран на 5-ти етаж и разполага с обща площ от 70 кв. м. , разгърната по следния практичен начин: Входно антре, спалня, хол с кухненски бокс, баня с тоалетна, тераса и изба.
Отопление: електричество. Изложението е източно. Сградата има асансьор.
Жилището се продава на шпакловка и замазка, за да може Вашето въображение да го превърне в мечтания за Вас нов ДОМ!
За оглед на това и други атрактивни предложения, не се колебайте да ни потърсите на посочения телефон или да ни изпратите данните си чрез формата за запитване на сайта. Реф. номер: 777
Особености
Асансьор • Саниран • Тухла






