Брокер
Обща информация
Допълнителна информация
РЯДЪК ШАНС! ПРЕДЛАГАМЕ ВИ ЗА ПРОДАЖБА ЕДИН НЕВЕРОЯТЕН ИМОТ В СЪРЦЕТО НА КВАРТАЛ ОСТРОМИЛА.
ДВА ГОЛЕМИ ПАРТЕРНИ ГАРАЖА ВКЛЮЧЕНИ В ЦЕНАТА! ЕДИНИЯТ Е С ТОПЛА ВРЪЗКА!
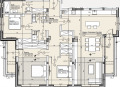
АПАРТАМЕНТЪТ Е С ОБЩА ПЛОЩ ОТ 200 КВ. М. , РАЗПОЛОЖЕН Е НА ШЕСТИ ПОСЛЕДЕН ЕТАЖ В НОВА ЛУКСОЗНА СГРАДА С АКТ 16!
ЖИЛИЩЕТО Е С НЕВЕРОЯТНА ЮЖНА ГЛЕДКА КЪМ РОДОПИТЕ.
ИМОТА ИМА СЛЕДНОТО ФУНКЦИОНАЛНО РАЗПРЕДЕЛЕНИЕ - ОГРОМЕН ЮЖЕН ХОЛ С ПЛОЩ 47 КВ. М. , ТРИ ПРЕКРАСНИ СПАЛНИ - ДРЕШНИЦИ, ГОЛЯМА БАНЯ , ПЕРАЛНО НЯКОЛКО ТОАЛЕТНИ, КИЛЕР, КОТЕЛНО -
❗ ❗ ЖИЛИЩЕТО ИМА ИЗГРАДЕНО ПОДОВО ОТОПЛЕНИЕ И ТЕРМОПОМПА НА МИЦУБИШИ ЕЛЕКТРИК❗ ❗
ИМОТ С МНОГО ПОТЕНЦИАЛ КОЙТО МОЖЕ ДА СЕ ПРЕВЪРНЕ В ДОМА НА МЕЧТИТЕ ВИ!
КРАСИВА МАЛКА БУТИКОВА СГРАДА - ЛУКСОЗНИ ОБЩИ ЧАСТИ - ЗАВЪРШЕНИ С ЕСТЕСВЕН КАМЪК И ДЕКОРАТИВНИ МАЗИЛКИ.
ОСИГУРЕНО БАНКОВО КРЕДИТИРАНЕ ПРИ НАЙ-ДОБРИ УСЛОВИЯ ЗА ВСИЧКИ НАШИ КЛИЕНТИ!
ЗА КОНТАКТИ И ОГЛЕДИ - 0894 419 707 ДИМИТРОВ 'ИМОТ КОНСУЛТ'









