Обща информация
Допълнителна информация
✔ Доказан строител с над 20 годишен опит в сферата✔ Гарантирана цена до Акт 16! ✔ Разсрочени схеми на плащане!
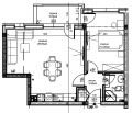
➡ Апартаментът се състои от антре, баня с тоалетна, склад, спалня, дневна с трапезария, тераса и е с обща площ от 70, 49 кв. м.
✔ Локация: кв. Беломорски
✔ Технически характеристики на сградите:
Конструкция: Монолитна, стоманобетонна;
Стени между съседни имоти - зид от керамични тухли Wienerberger с обща дебелина 25см;
Външна топлоизолация - 10см
PVС дограма
Входни врати: Блиндирани, пожароустойчиви;
Вътрешни стени и таван - гипсова мазилка, под - циментова замазка.
ВиК инсталации: Водопровод - полипропиленови тръби, канализация - PVC тръби;
Ел. инсталация: Трипроводна, хоризонтална и вертикална разводка с монтирано апартаментно табло;
Слаботокови инсталации: Изградено окабеляване за кабелна телевизия, телефон, интернет и домофонна инсталация;
Отоплителна инсталация: изградени трасета за климатици;
Асансьор: електрически, шумоизолиран;
Общи части: Напълно завършени по проект.
✔ Паркиране: Възможност за покупка на надземни гаражи и паркоместа
Реф. : 5440




