Продава 2-СТАЕН, град София, Манастирски ливади ID 12791040
Брокер
Обща информация
Допълнителна информация
Оферта 81286
Без комисионна!
2-стаен апартамент в новоизграждаща се сграда в кв. Манастирски ливади изток.
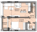
Апартамента е от 67 кв. м. (чисто 58 кв. м. ) и се състои от дневна с кухненски бокс,
спалня , баня с WC , балкон. Западно изложение.
Сградата се намира непосредствено до сграда Бориса Апартментс 1, на ул. Луи Айер,
като отново се залага на модерна визия и висококачествени материали.
В близост до нея се намира Центърът на града, бързата пътна артерия бул. България, един от най големите паркове Южен парк, Bulgaria Mall и Paradise Center.
Предимства:
-Просторни и светли апартаменти с френски прозорци с гледка към Витоша
-малък процент общи части
-чудесно местоположение на 60 метра от новоизграждащия се линеен парк, включващ езеро, реки, велоалеи, детски площадки и зелени площи
-високо ниво на звукоизолация и енергийна ефективност
-алуминиева дограма Рейнърс Мастърлайн 8 с топъл дистанционер
-Шиндлер асансьори
-Двойна зидария с шумоизолация м/у отделните апартаменти
-шумоизолация на пода
-Без комисионна
В сградата предлагаме и други 2-, 3- и 4-стайни апартаменти.
Ако желаете да организираме оглед, да получите допълнителна информация или
други атрактивни предложения може да се свържете с нас на посочените контакти:
Лице за контакт: Олга Дюлгерова - телефон: 0898606700
Имотна къща Римекс София може да ви съдейства с консултация при:
- Правен казус
- Независима пазарна оценка и сравнителен анализ
- Индивидуален бизнес план при продажба и покупка
- Управление на финансов ресурс
- Кредитна консултация
- Застраховка живот и имущество




