Обща информация
Допълнителна информация
🙏 С всяка сделка ние от Diamond Home помагаме! 💎
Даряваме процент от нашата комисионна на Фондация Вярвай - организация, която подпомага хора, борещи се с рак.
Вярваме, че заедно можем да направим нещо повече от просто бизнес - можем да дадем надежда. ❤ ️
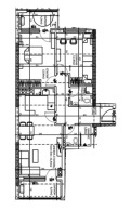
🏠 Представяме Ви тристаен апартамент, разположен в новострояща се сграда в кв. Тракия. Имотът е отличен избор както за лично ползване, така и за инвестиция.
📐 Разпределение:
дневна с кухненски бокс и трапезария
две спални
баня с тоалетна
тоалетна
входно антре
две тераси
📍 Локация:
Имотът се намира в добре развит район с бърз и удобен достъп до основни пътни артерии. В непосредствена близост са разположени магазини, училища, детски градини, паркове и спирки на градски транспорт, което осигурява удобство и комфорт в ежедневието.
🚗 Допълнителна възможност:
Има възможност за закупуване на гараж или паркомясто към имота.
💎 Нашата мисия е да ви предоставим доверие и обслужване от най-висок клас.
💎 Предлагаме над 1000 имота.
💎 Нашите услуги включват:
- Консултация със старши брокер
- Съдействие при кредитиране
- Договаряне на най-изгодни условия
- Пълна документация и юридическа подкрепа
- Управление на имоти
💎 За информация или оглед се свържете с нас!
ОФЕРТА НОМЕР: 243678


