Посетена 3 пътиПубликувана в 19:29 на 30 Октомври 2025
Обща информация
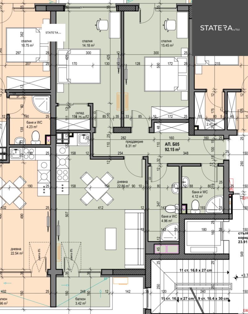
Квадратура110 m2
Етаж2-ри
ГАЗНЕ
ТEЦНЕ
Допълнителна информация
Предлагаме тристаен апартамент в нова луксозна сграда с Акт 14 Statera / ап. Б05. 
Акт 15 се очаква ноември 2025г. 
Намира се на булевард Цариградско шосе до метростанция Интер Експо Център, в оживен район с развита инфраструктура, бърз достъп до всяка точка на града, невероятни гледки към Витоша и най-модерните и емблематични бизнес сгради в София. 
Апартаментът се състои от хол с кухненска, част, две спални, два балкона входно предверие, и две бани с тоалетна. 
В сградата на 2 подземни нива и 9 надземни етажа са разположени 59 апартамента, 50 гаража, 10 паркоместа, рецепция, офис, кафене, фитнес център, детска площадка и паркинг за посетители. 
За допълнителна информация: 
0887596433 
www.r66-europe. com 
Особености
Асансьор • С гараж • С паркинг • Лизинг • Интернет връзка • Видео наблюдение • Контрол на достъпа • Саниран • Възможност за дан. кредит • Тухла


