Брокер
Обща информация
Допълнителна информация
Оферта 1514
AZ Estate предлага за продажба просторен необзаведен тристаен апартамент в к-с Азимут сграда Атлас 4, гр. Бургас.
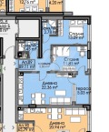
Жилището е с площ 89кв. м и се намира на 9-ти етаж.
Разпределението е както следва: антре, хол с изводи за кухня, баня с тоалетна, две стаи и тераса.
Имотът е подходящ, както за сезонно, така и за целогодишно ползване.
Комплекс разполага с: денонощна охрана, ограничен достъп, техническа поддръжка, поддръжка на общите части, озеленени площи, детска площадка, магазини, аптека, медицински център и др.
Апартаментът ще бъде издаден по БДС.
Акт 16 се предвижда през 2027 г.
Комплексът се намира в к-с Славейков - в близост до болница Сърце и мозък , Университет Проф. д-р Асен Златаров , магазин Метро .
Наблизо са: голям супермаркет, магазини, аптека, поликлиника, спирка на автобуса, ресторанти, заведения и друга инфраструктура.
ПВ 30%
розтрочено плащане - 2 години













