Брокер
Обща информация
Допълнителна информация
(ОФЕРТА-8902)
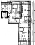
За нас от АКРОНА ИМОТИ е удоволствие да Ви предложим чудесно тристайно жилище в един от най-предпочитаните квартали, а именно квартал Тракия. Имотът се състои от хол с кухненски кът, две самостоятелни спални, кабинет, баня с тоалетна и отделна тоалетна, входно антре, тераса и прилежащо избено помещение. Апартаментът ще бъде издаден на шпакловка и циментова замазка, което ще Ви даде неверотната възможност да развихрите въображението си и да го превърнете в дома на мечтите си. Локацията е прекрасна и ще Ви осигури близост до всичко от което се нуждаете.
За повече информация или оглед се обадете на посочените телефони!
Оказваме пълно съдействие за банково кредитиране при най-добри условия и цялостна юридическа проверка на имотите, които предлагаме! Разгледайте пълният ни списък от оферти на www.acronaimoti.bg


