Посетена 65 пътиПубликувана в 10:04 на 06 Февруари 2026
Обща информация
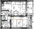
Квадратура64 m2
Етаж4-ти
ГАЗНЕ
ТEЦНЕ
Допълнителна информация
Представяме Ви за продажба двустаен апартамент в напреднал етап на строителство с АКТ 14 !
➡ ️ Жилището е просторно и се състои от: входно антре, всекидневна с кухненски бокс - 20. 5 м2, спалня - 14 м2, тераса и баня с тоалетна.
➡ ️ 4- ти жилищен етаж от 5.
➡ ️ Комуникативно място в близост до всички необходими удобства!
➡ ️ Изпълнява се от доказан инвеститор - един от най-опитните в града с много завършени обекти. Очаква се сградата да се актува през 2026 година.
При интерес моля свъжржете се на посочения телефон 0879947884!
Особености
Асансьор • Тухла




