Продава 2-СТАЕН, област Пловдив, гр. Асеновград ID 14051047
Обща информация
Допълнителна информация
!! ЖИЛИЩЕН КОМПЛЕКС 'СПОРТИСТ' !!
!! РЕЗЕРВИРАЙ СВОЯ НОВ ДОМ СЕГА !!
След успешно реализирани три сгради на ул. 'Спортист' до детска градина 'Надежда', стартираме проекта на нови 4 сгради с прекрасни жилища, които ще превърнем в уютен дом.
Жилищен комплекс 'Спортист' се отличава с високачествено строителство, просторни стаи, компактни квадратури и изключително малък процент общи части. Всяко жилище разполага със складово помещение, а проблемът с паркирането е решен с партерни гаражи, паркоместа и подземен паркинг под всички сгради.
Комплексът се намира на много предпочитано място за живеене - в района на болницата, спортната зала, гимназията и детска градина 'Надежда'.
Разполага с:
- ДВУСТАЙНИ ЖИЛИЩА, ПРЕКРАСНИ ЗА ИНВЕСТИЦИЯ
- ТРИСТАЙНИ ЖИЛИЩА С ПРОСТОРНИ СТАИ
!! ВСИЧКИ ЦЕНИ СА БЕЗ ДОПЪЛНИТЕЛНА КОМИСИОНА ОТ КУПУВАЧ !!
!! ДИРЕКТНИ ПРОДАЖБИ !!
! ВЪЗМОЖНОСТ ЗА РАЗСРОЧЕНО ПЛАЩАНЕ БЕЗ ОСКЪПЯВАНЕ - ГАРАНТИРАНЕ ЦЕНА !!
За пълна информация се свържете с нас:
0896376226 0897982700 0896721616
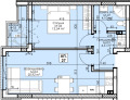
Разпределение на всички сгради:
www.in-borsa. com
Агенцията предлага:
-ИЗЦЯЛО БЕЗПЛАТНО СЪТРУДНИЧЕСТВО ПРИ БАНКОВО КРЕДИТИРАНЕ С ВСИЧКИ ВОДЕЩИ БАНКИ.
-Изготвяне на всички документи за ПОКУПКО-ПРОДАЖБА на недвижими имоти!
-ЮРИДИЧЕСКИ УСЛУГИ.









