Продава 3-СТАЕН, град Пловдив, Младежки Хълм ID 14145476

187 531 €366 778.76 лв.Не се начислява ДДС

Агенция

ТИТАН ПРОПЪРТИС ПРОДАЖБИ ПЛОВДИВград Пловдив бул. Христо Ботев 91, етаж 5, офис 10
Посетена 7 пътиПубликувана в 16:59 на 30 Септември 2025

Обща информация

Квадратура96 m2
Етаж2-ри

Допълнителна информация

Титан Пропъртис Ви представя тристаен апартамент в района на Младежки хълм.
В близост за разположени търговски обекти, медицински университет, болница, детска градина, МОЛ Пловдив, спирки на градски транспорт.

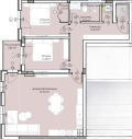
Жилището е ситуирано на 2-ри от 3-ти етаж и е с площ от 96 кв. м. със следното практично разпределение: Входно антре, дневна с кухненски бокс, , две спални с гардеробна, баня с тоалетна, отделна тоалетна и тераса.
Отоплението е електричество.
Има възможност за закупуване на надземно или подземно паркомясто или гараж.
Предлага се на шпакловка и замазка за да може да се превърне във мечтания от Вас дом!

За оглед на това и други атрактивни предложения, не се колебайте да ни потърсите на посочения телефон или да ни изпратите данните си чрез формата за запитване на сайта.
Референтен номер: 1118

Особености

Асансьор • С гараж • С паркинг • Тухла

Страница на обявата

Агенция

ТИТАН ПРОПЪРТИС ПРОДАЖБИ ПЛОВДИВград Пловдив бул. Христо Ботев 91, етаж 5, офис 10

Споделяне

Преглeд на обявите по населени места: