Брокер
Обща информация
Допълнителна информация
456737 Офертата е само за частни лица!
Предлагам за продажба обзаведен, изцяло южен, 2-СТАЕН апартамент, на ул. Овчаренски водопад, до бул. Андрей Ляпчев и парк Въртопo. На 600 м е Международна гимназия Златарски.
Разположен е на четвърти от общо пет етажа, в поддържана сграда от 2011г.
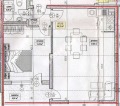
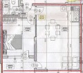
Състои се от антре, дневна с кухненски бокс и трапезария - 32 кв. м, самостоятелна спалня - 14. 36 кв. м, баня с тоалетна и балкон, на който се излиза и от двете помещения, застроена площ от 64. 20 кв. м.
Апартаментът се предлага напълно обзаведен, подходящ е за инвестиция. Около сградата може да се паркира свободно.
Имотът има жилищен статут; Сградата има асансьор; Продава се без обзавеждане; ЕТАП НА СТРОИТЕЛСТВО: разрешение за ползване (Акт 16); ОТОПЛЕНИЕ: ел. нагреватели/климатик; Има 1 балкон/тераса; С довършителни дейности; Непреходен; ВИД СТРОИТЕЛСТВО: тухла; ЗАСТРОЕНА ПЛОЩ 64. 20 кв. м; ГОДИНА НА СТРОИТЕЛСТВО: 2011 г. ; ИЗЛОЖЕНИЕ: юг; СПАЛНИ: 1; БАНИ: 1; ДОГРАМА: PVC
_________________________________________________________________________________________________
Към потенциалните продавачи!
Ако продавате подобен имот или обмисляте дали да го направите в близко бъдеще, моля свържете се с мен. Имам клиенти, които търсят в района. Мога да дам ориентировъчна цена по телефон или имейл и по-точна цена при оглед на място.
ОГЛЕДЪТ И КОНСУЛТАЦИЯТА СА БЕЗПЛАТНИ.
МОЖЕТЕ СЪЩО ТАКА, ДА ПОДАДЕТЕ И БЕЗПЛАТНА ЧАСТНА ОБЯВА ЗА ПРОДАЖБА НА ВАШИЯ ИМОТ В MIRELA. BG, БЕЗ БРОКЕР И КОМИСИОНА.













