Брокер
Обща информация
Допълнителна информация
БИЛДИНГ БОКС предлага за продажба 4 бр. УПИ с ток, вода, ограда, разрешение за строеж и проект за едноетажна къща в с. Крумово, само на минути от гр. Пловдив.
Възможност веднага да започнете строеж, отлични параметри и реален потенциал за развитие, разположени в предпочитана зона.
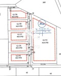
Основни параметри на имотите:
Площ: 641 кв. м (чиста площ), 73 кв. м път, общо 714 кв. м
Лице към път: 19 м
На 300 метра от асфалтирана улица, с достъп по чакълирана улица. Пред парцелите трошен асфалт.
Ток, вода, ограда, разрешение за строеж и проект за едноетажна къща.
Всеки от парцелите е ограден.
Общо 4 имота: Има възможност за придобиване на два или повече съседни имота, което позволява обединяване на парцелите и реализиране на по-мащабен проект според нуждите на бъдещия собственик или инвеститор.
Подходящи за:
Изграждане на еднофамилна къща за постоянно живеене
Реализация на инвестиционен проект
Обединяване на парцели и създаване на по-голям жилищен или бутиков комплекс
Имотите предлагат отличен баланс между пространство и възможност за дългосрочно развитие все по-търсена комбинация в близост до Пловдив.
БИЛДИНГ БОКС осигурява безплатна консултация и съдействие при кредитиране за покупка на имот.
Оферта 31400









