Продава 3-СТАЕН, област Пловдив, гр. Асеновград ID 16087648
Обща информация
Допълнителна информация
Компания X представя на Вашето внимание тристаен апартамент в Асеновград.
МЕСТОПОЛОЖЕНИЕ: Районът около Асеновград е обграден от красива природа, включително планините Родопи. Това прави града атрактивно място за туризъм и почивка на открито. В Асеновград се намира крепостта Асенова крепост, която е един от най-големите и най-значимите средновековни крепости в България.
СТРОИТЕЛСТВО: Апартаментът се намира на 3-ти етаж, в сграда ново строителство.
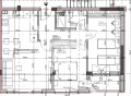
РАЗПРЕДЕЛЕНИЕ: Жилището разполага с площ от 83 кв. м. , разпределена по следния начин: входно антре, дневна с кухненски бокс, две спални, баня с тоалетна.
СЪСТОЯНИЕ: В строеж.
Заповядайте да Ви го покажем. Използвайки нашите услуги Вие ще превърнете закупуването на новия си дом в едно приятно изживяване, ще получите персонален консултант, съдействие при кандидатстване за кредит от всички банки в България, интериорни дизайнери и екип, който да се погрижи за нужните документи по Вашата сделка. На Ваше разположение сме всеки ден, от понеделник до неделя от 09:00 до 20:00ч. Възползвайте се от безплатна консултация в наш офис, където ще ви спестим време и ще ви запознаем с всички актуални имоти в България, отговарящи на Вашето търсене. Свържете се с нас на 0887779990 или на 0884060990 и цитирайте кода към имота: 909-26718

