Продава 2-СТАЕН, град Пловдив, Христо Смирненски ID 16326043
Брокер
Обща информация
Допълнителна информация
ДИРЕКТНО ОТ ИНВЕСТИТОР! 10% ПЪРВОНАЧАЛНА ВНОСКА!
Предлагам за продажба двустаен апартамент с обща площ от 71, 06 м² , разположен на втори жилищен етаж в бъдеща сграда, позиционирана в най-предпочитаната зона на кв. Христо Смирненски, зад болница Селена, в близост до:
Гребен канал
УМБАЛ Св. Георги
МОЛ Пловдив
Училище Кирил и Методий, Математическа Гимназия
Детска градина Росица
Детска ясла 100 усмивки
Хипермаркет Лекси
Автобусни спирки
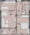
📌 Разпределение на жилището:
Просторна дневна с трапезария и кухненски бокс 24, 65 м²
Спалня 14 м²
Баня с тоалетна 4, 3 м²
Антре 4, 4 м² със склад/мокро помещение 1, 05м2
Лоджия 5, 15 м²
✅ Изложение Югозапад - Светлина през целия ден
✅ Етаж 5 от 9, удобна и предпочитана позиция в сградата
✅ Възможност за покупка на гараж или паркомясто
✅ Без комисионна от страна на купувача
🏗 ️ Сградата е с одобрено разрешение за строеж, въвеждането в експлоатция е планирано за 2028 г.
🔨 Изпълнява се от доказан инвеститор с десетки успешно завършени обекти в Пловдив, използващ висококачествени материали и съвременни строителни технологии
💼 Имот с отличен потенциал както за собствено ползване, така и за инвестиция с висока доходност
📞 Свържете се с мен за повече информация - 0897 080 399 / Ангел Катушев




