Обща информация
Допълнителна информация
Изцяло южен тристаен апартамент с панорама към града и морето!
Реф. 590
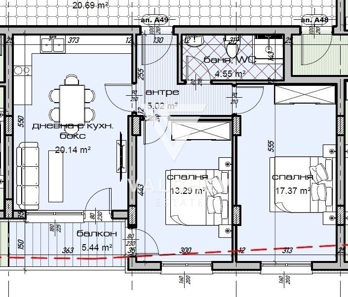
Имотът Представлява : входно антре, просторен и светъл дневен тракт с кухненска част в него, място за мека мебел и хранене с излаз към тераса; просторна родителска спалня с размери 13, 29 кв. м. , втора детска спалня с квадратура 17, 37кв. м. , баня с тоалет в едно и мазе. Имотът е разположен на среден етаж в нова сграда с Акт 14. Към имота могат да се закупят и две големи паркоместа в подземния паркинг на сградата с възможност за поставяне на зарядна станция за електромобили!
Състояние : Имотът се издава по БДС.
Забележка : Приложените по-горе описания, снимки, скици, архитектурни разпределения и визуализации са предоставени от собственика, и имат за цел да Ви дадат максимално добра и идейна представа за общия вид и разпределението на имота !
Локация: имота е разположен в нова жилищна сграда в непосредствена близост до Цветния квартал.
VALCHEV ESTATE съдейства с всички необходими юридически и технически проверки на имота, организира всички етапи на сделката до нейното финализиране с нотариалното прехвърляне на имота.
VALCHEV ESTATE съдейства за отпускане на банков кредит при възможно най-добри условия за клиента!
Консултант недвижими имоти: Георги Вълчев - 0895 415523








