Обща информация
Допълнителна информация
Агенция за недвижими имоти Мой дом Ви предлага ЕКСКЛУЗИВНО ДВУСТАЕН апартамент в НОВОСТРОЯЩА се сграда в квартал Кайсиева градина.
Характеристики:
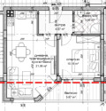
Имотът се състои от дневен тракт, спалня, комбиниран санитарен възел и тераса с възможност за закупуване на паркомясто. Жилището ще бъде завършено по БДС.
За сградата:
Модерен и функционален проект с отлична локация в един от най-динамично развиващите се квартали на града. Сградата е проектирана с внимание към съвременните стандарти за комфорт и енергийна ефективност. Проектът разполага с подземни и надземни паркоместа, асансьори с висока скорост и търговски обекти на партерно ниво, което създава модерно и удобно пространство за живот. Архитектурата е съвременна с функционални тераси и светли общи части, гарантиращи уют и качество на живот.
Локация :
Имотът се намира в непосредствена близост до училище, детска градина, магазини, спирки на градски транспорт и други.
Агенция МОЙ ДОМ предлага на своите клиенти безплатна консултация относно актуалните имоти на пазара, съдействие при банково кредитиране, както и насоки и партньорска помощ при планиране и реализация на ремонтни дейности.
За повече информация и огледи:
Доника Георгиева - 0893732330


