Посетена 2 пътиПубликувана в 11:39 на 20 Март 2026
Обща информация
Квадратура65 m2
Етаж1-ви
ГАЗНЕ
ТEЦДА
Допълнителна информация
Титан Пропъртис има удоволствието да Ви предложи, Двустаен панелен апартамент в ж. к Славейков.
Намира се в близост до автобусна спирка, салон за красота, аптека, хранителен магазин, заведение и др.
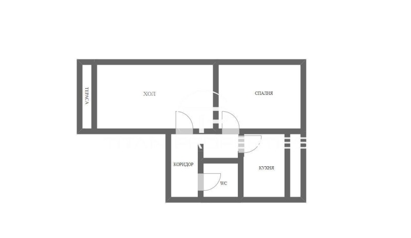
Апартаментът е ситуиран на 1-ви етаж с жилищна площ от 65 кв. м, разгърната в следното практично разпределение:
коридор, спалня, хол , кухня, баня с тоалетна, 2 тераси.
Строителство - панел
Състояние: за ремонт
Към имота има прилежащо избено помешение.
Агенцията съдейства за банково кредитиране с всички водещи банки в страната при най-добри условия!
За оглед на това и други атрактивни предложения, не се колебайте да ни потърсите на посочения телефон или да ни изпратите данните си чрез формата за запитване на сайта. Реф. номер: 2082676.
Особености
Асансьор • Панел

