Брокер
Обща информация
Допълнителна информация
Топ цена! Ново строителство! Статут Апартамент! 🏆 ✨
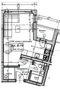
Представяме ви функционален 1-стаен апартамент в ж. к. Дружба 2, София идеален както за лично ползване, така и като инвестиция. Имотът е част от модерна нова сграда с качествено изпълнение и удобен достъп до ключови точки в града. Просторното студио с обща площ 51 кв. м позволява комфортно обитаване.
- 📍 Локация: София, ж. к. Дружба 2
- 🏠 Тип: 1-стаен, ново строителство (статут Апартамент)
- 📐 Общa площ: 51. 00 кв. м
- 💶 Цена: 108 830
- 🗓 ️ Планирано завършване: 2027 г.
- 🔑 Предимства: функционално разпределение, светли помещения, висок инвестиционен потенциал
- 🧱 Сграда: съвременно строителство, качествени общи части и материали
- 📈 Подходящ за: отдаване под наем или първо жилище; лесна поддръжка и ниски разходи
- 🤝 Възможност за съдействие при финансиране и довършителни решения по избор
Допълнителни акценти:
- 🌟 Топ локация с бърз достъп до метролиния, булеварди и бизнес зони
- 🛒 Наблизо: търговски обекти, училища, детски градини, зелени площи и спортни съоръжения
- 🚶 Удобна пешеходна инфраструктура и връзка с паркoве за активен начин на живот
Квартал Дружба 2 е динамично развиваща се зона с отлично транспортно обслужване, включително метро и множество автобусни линии. Районът съчетава спокойствие, зеленина и практичност, като предлага всички ежедневни удобства на една ръка разстояние. 🌳 🚇
Свържете се с нас за оглед и детайлна план-схема. 📞 ✨
НОВ ДОМ 1 : Компанията разполага с : Юридически Отдел - извършващ всички необходими юридически и технически проверки на имота, организира всички етапи на сделката до нейното финализиране с нотариално прехвърляне на имота. Кредитен Отдел - съдействащ за отпускане на банков кредит при възможно най-добри условия за клиента, като избора на банка се определя спрямо нуждите и възможностите на клиента. Строително-Ремонтен Отдел - гарантиращ при нужда цялостен ремонт на вашето жилище до ключ при най-изгодни условия и цени.
Консултант Недвижими Имоти : Петър Христов 0888925556


