Продава МЕЗОНЕТ, град София, Люлин - център ID 16979648
Обща информация
Допълнителна информация
Агенция Еритаж има удоволствието да Ви представи за продажба просторен тристаен апартамент - мезонет в новострояща се бутикова тухлена жилищна сграда в ж. к. Люлин-Център.
Имотът се намира на изключително комуникативно място между бул. Царица Йоана и Джавахарлал Неру , в непосредствена близост до Метростанция Люлин, трамвай 8, Технополис, Билла, Фантастико и редица други удобства.
Агенцията разполага и с други апартаменти в тази и в други сгради в София.
Характеристики на имота:
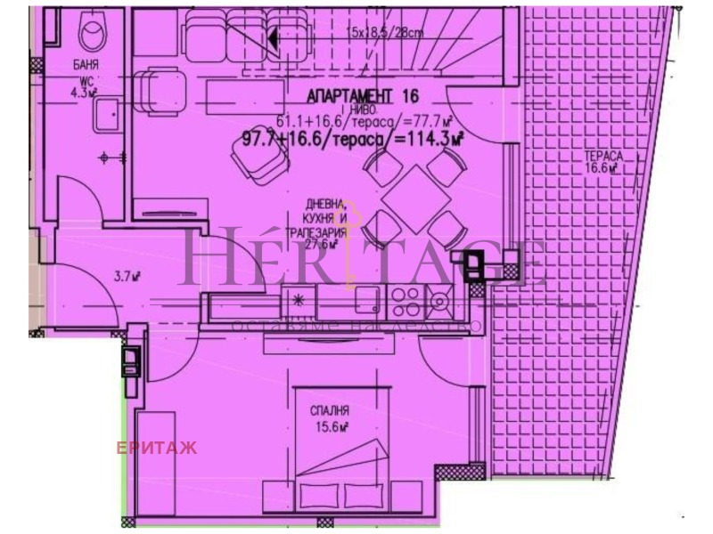
Тип: тристаен апартамент - мезонет
Обща площ: 133, 63 кв. м
Чиста жилищна площ: 114, 30 кв. м
Общи части: 19, 33 кв. м
Етаж: 5
Изложение: юг
Разпределение:
Първи етаж: спалня
дневна с трапезария и кухненски бокс
баня с тоалетна
тераса
Втори етаж: спалня
баня с тоалетна
складово помещение
Цена: 247 200
За сградата:
шест надземни етажа
гаражи на партерно ниво (възможност за закупуване)
очакван Акт 16 края на 2027 г.
Предимства:
отлична локация с перфектна транспортна достъпност
висококачествено строителство и модерна визия
функционално разпределение с простор и светлина
подходящ както за семеен дом, така и за инвестиция
Агенция Еритаж предлага безплатна консултация и съдействие при кредитиране за покупката на вашия имот.
Не се колебайте да се свържете с нас!
Телефони: 0878 925 559, 0878 488 910
Уебсайт: www.heritage-bg. com


