Продава КЪЩА, град София, в.з.Малинова долина - Герена ID 17076923
Брокер
Обща информация
Допълнителна информация
BULGARIA SOTHEBY’ S INTERNATIONAL REALTY има удоволствието да представи на Вашето внимание луксозен жилищен комплекс от затворен тип, състоящ се от 80 къщи и 4 блока с апартаменти. С модерна архитектура, изцяло подчинена на използването на естествени материали, съчетаваща комфорт, функционалност и висок стандарт.
ХАРАКТЕРИСТИКИ НА ИМОТА
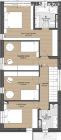
КЪЩИ Т3 - Еднофамилни жилищни сгради
Изложение: Север, Юг
Застроена площ (Етаж 1): 99, 86 кв. м.
Застроена площ (Етаж 2): 99, 54 кв. м.
Обща разгъната застроена площ: 199, 44 кв. м.
Двор: 152, 83 кв. м.
Двор + Веранда: 181, 02 кв. м.
Обща площ на парцела: 284, 67 кв. м.
Разпределение: Дневен тракт с кухня, сервизно помещение, тоалетна, градински склад, двор + веранда, 4 спални, 2 бани с тоалетни.
Две паркоместа са включени в цената.
ПРЕДИМСТВА НА ИМОТА
Над 50% озеленяване - засаждане на дървета и друга зеленина;
Контролиран достъп и видеонаблюдение;
Професионална поддръжка на всички зони;
Детска зона за игра, алеи за бягане и площадка за спорт;
Лесен достъп до главни пътни артерии - Околовръстен път;
Висок клас строителство и материали;
Спокойна среда и чист въздух;
Зони за разхождане на домашни любимци;
Изцяло изградена вътрешна инфраструктура;
Много светлина и продължително слънцегреене.
ЛОКАЦИЯ НА ИМОТА
Намира в район с изключително чист въздух и доказана липса на вредни емисии и електромагнитни лъчения. Природата и заобикалящата го среда са максимално запазени, което осигурява на обитателите спокоен и качествен живот. Локацията осигурява възможност за бърза връзка с града, като само за няколко минути имате достъп до Околовръстен път.
Цената е без ДДС.
АКТ 14 - април 2026 год.
АКТ 15 - декември 2026 год.
АКТ 16 - юни 2027 год.
Планирано завършване - юни 2027 год.
Реф. 7699












