Продава 2-СТАЕН, град Пловдив, Христо Смирненски ID 18016199
Брокер
Обща информация
Допълнителна информация
🔑 Директно от инвеститор без комисион!
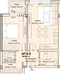
Двустаен апартамент B9 | 69, 66 кв. м| Етаж 2, Секция Б
Продава се удобен и добре организиран двустаен апартамент в стилна бутикова сграда, разположена до Гребната база и парк Отдих и култура предпочитана локация за спокоен и качествен градски живот в Пловдив.
👉 Разпределение:
Светла и практична дневна (21, 68 кв. м)
Удобна спалня (12, 57 кв. м)
Баня с тоалетна (4, 13 кв. м)
Складово помещение (3, 14 кв. м)
Отделно перално помещение (1, 99 кв. м)
Тераса (2, 85 кв. м) за свеж въздух и релакс
📐 Реална застроена площ: 60, 56 кв. м
🏢 Общо застроена площ с общи части: 69, 66 кв. м
✅ Предимства:
Отлично функционално разпределение без излишно загубено пространство
Бутикова сграда с малко апартаменти и стилна архитектура
Локация с лесен достъп до зелени площи и ключови удобства
Идеален за собствено ползване или доходоносна инвестиция
ℹ ️ Научете повече за проекта и свободните имоти: www.virella.bg
📞 За подробности и оглед: Симеон Спасов 0896345025. Имот 6629












