Брокер
Обща информация
Допълнителна информация
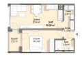
БЕЗ КОМИСИОННА ОТ КУПУВАЧА!!! ДРИЙМ ВИЖЪН НЕДВИЖИМИ ИМОТИ Продава двустаен апартамент в кв. Кръстова вада. Жилището се намира в новострояща се сграда, част от луксозен затворен комплекс. Намира се близо на много комуникативно място - бързо придвижване до всяка точка през бул. 'Черни връх', близо до МОЛ 'Paradise'. Комплексът ще разполага много зеленина и алеи, детска площадка, кът за отдих, видеонаблюдение и денонощна охрана на входа на комплекса. Жилището се състои от входно антре, дневна с кухненски бокс и трапезария, спалня, баня с тоалетна, склад, тераса. Възможност за закупуване на гаражи и паркоместа. Предава се на шпакловка и замазка. В комплекса предлагаме и други апартаменти. Качествено строителство от доказал се строител. Оферта в агенцията 10084. Всички наши обяви ги работим с колеги. Още наши оферти може да намерите на www.dreamvision.bg Телефони за връзка: 02 421 96 35 / 0886 13 22 91 - Димитър Георгиев


