Брокер
Обща информация
Допълнителна информация
? Първокласен офис в Бояна, София ?
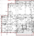
Фърст естейтс има удоволствието да Ви представи един разкошен офис, разположен в престижния квартал Бояна. Офисът е площ от 163 кв. м и предлага отлична възможност за създаване на индивидуално работно пространство, съобразено с вашите нужди. Разположен на втория етаж, той се отличава с високи 3, 2 метра тавани и френски прозорци, позволяващи влизането на обилчно количество естествена слънчева светлина през целия ден.
Офиса се предлага на шпакловка и замазка, а сградата е пред акт 16.
Може да се закупи допълнително подземен гараж на цена от 30 000 без ДДС.
Цената е без ДДС.
Този офис предлага перфектната комбинация от премиум характеристики, идеален за бизнеси, търсещи изискано и функционално пространство в Бояна. Свържете се с нас днес, за да научите повече! ??
За повече информация и организиране на оглед, моля свържете се с нас на телефон: 0 700 15 15 1 и цитирайте код на офертата: 2-12038








