Обща информация
Допълнителна информация
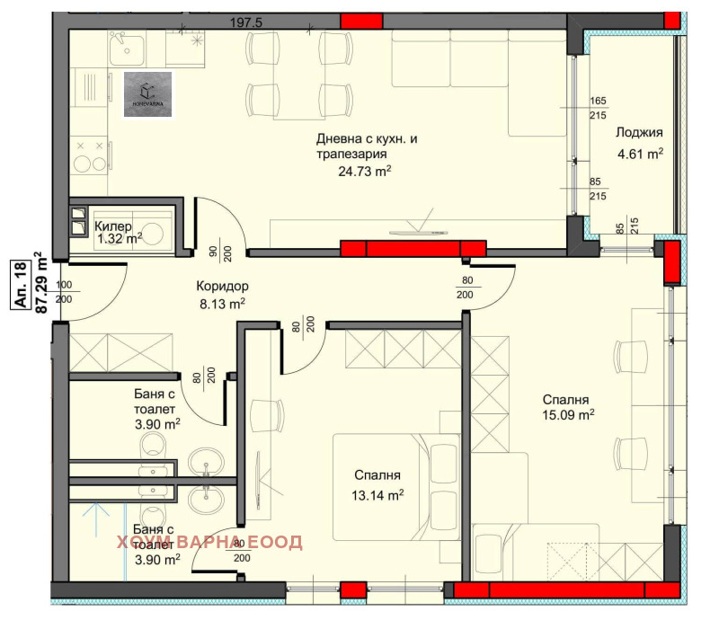
ДИРЕКТНО ОТ ИНВЕСТИТОР! Строителна фирма Хоум Варна ЕООД продава апартаменти и паркоместа в жилищна сграда в кв. Аспарухово, ул. Борис Киряков 4. На шест жилищни етажа са разположени 16 двустайни, 16 тристайни и 1 четиристаен апартаменти. На разположение на живущите ще бъдат 17 подземни и 19 дворни паркоместа. Отличен достъп, улично осветление и страхотна панорама към морето и града. Стартирало строителство. Етапи на завършване: Акт 14: март 2026 г. , Акт 15: ноември 2026 г. , въвеждане в експлоатация март 2027 г. БЕЗ ТАКСА ПОДДРЪЖКА. Апартаментът A-18 ссе състои от 2 спални, дневна с кухненски бокс и трапезария, 2 бани с тоалетна, килер, коридор и лоджия. Имотът е с обща площ 99, 11 кв. м, което включва 87, 29 кв. м чиста жилищна площ и 11, 82 кв. м общи части. Посочената цена e при схема на плащане 60/30/10. За повече информация: https://homevarna.bg/building/panorama-asparuhovo/



