Посетена 13 пътиПубликувана в 07:31 на 18 Декември 2025
Обща информация
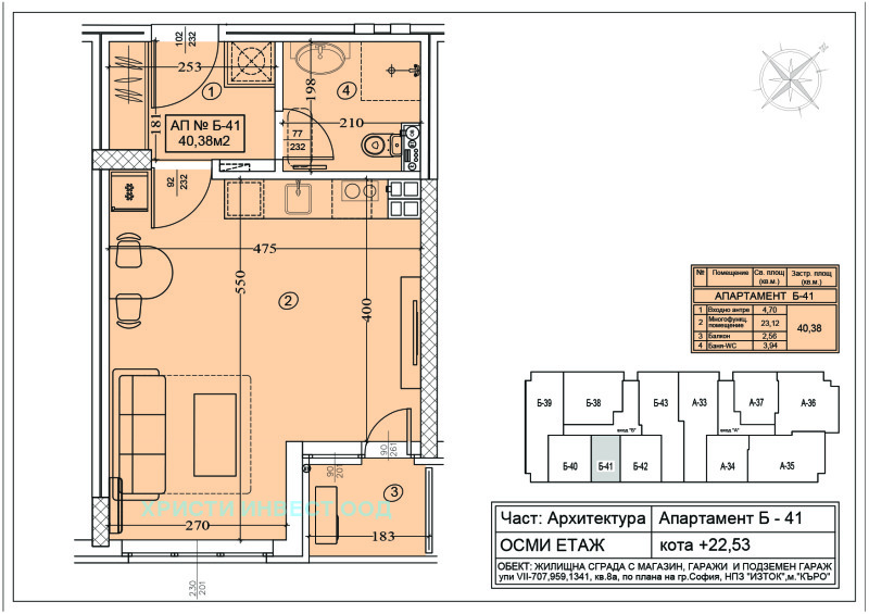
Квадратура48 m2
Етаж8-ми
ГАЗНЕ
ТEЦДА
Допълнителна информация
Продава 1-стаен тухлен апартамент в новострояща се луксозна сграда. Разпределение вх. антре, дневна с обособено място за сън, тоалетна и баня, балкон сзаст. пл. 40. 38кв. м. и с общ. ч. 47. 99кв. ч. Допълнително има възможност да се закупи гараж или паркомясто. Апартамента се предава на шпакловка и замазка.
Офертата се предлага само за частни лица.
Особености
Асансьор • Интернет връзка • Видео наблюдение • Контрол на достъпа • Саниран • Тухла

