Обща информация
Допълнителна информация
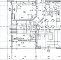
Агенция Явлена, предлага на вашето внимание, новострояща се жилищна сграда, в бързоразвивашият се и предпочитан за живеене квартал - Възраждане, м-ст Кочмар. В непосредствена близост има големи търговски вериги и супермаркети, болници, детски площадки, спирка на градски транспорт, която обслужва линии 83, 88 и др. В сградата ще има двустайни, тристайни апартаменти, ателиета и паркоместа по 11 000 евро. Ще бъдат издадени по БДС. Рекламираният имот е с обща площ от 77 кв. м и се състои от дневна с кухня - 19 кв. м, спалня - 11 кв. м, втора спалня - 11 кв. м, антре - 6 кв. м, баня с тоалет - 4 кв. м и балкон - 4 кв. м. Опция за закупуване на паркомясто. Срок на завършване - края на 2026-та година. Модерна и стилна фасада, за хора с вкус към детайла. Обадете се и ще получите опция за избор на мечтаното жилище. (yavlenaCOM/157263).



