Посетена 123 пътиПубликувана в 12:08 на 06 Януари 2026
Обща информация
Квадратура67 m2
Етаж2-ри
Допълнителна информация
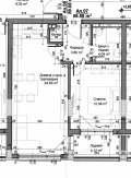
Двустаен апартамент в гр. Варна, м-т Пчелина, ул. Сергей Антонов 22, вход Б, ет. 2, ап. 7. Имотът се намира в модерна новострояща се жилищна сграда, с планирано завършване през 2026 г.
Характеристики:
Обща площ: 66. 90 кв. м
Чиста площ: 56. 98 кв. м
Коридор: 3. 80 кв. м
Килер
Дневна с кухня и трапезария: 24. 63 кв. м
Баня с WC: 4. 04 кв. м
Спалня: 12. 08 кв. м
Лоджия: 4. 12 кв. м (излаз от дневната)
Апартаментът се предлага необзаведен, подходящ за довършване по индивидуален проект.
Предимства на имота:
Ново строителство в спокоен и предпочитан район
Контролиран достъп и асансьор
Функционално разпределение
Прекрасна възможност за личен дом или инвестиционен имот
Възможност за закупуване на подземно или външно паркомясто
Особености
Асансьор • Контрол на достъпа • Тухла










