Обща информация
Допълнителна информация
Титан Пропъртис представя на Вашето внимание двустаен апартамент в кв. Kършияка.
В близост са разположени търговски обекти, спирки на градски транспорт, детски градини, училища.
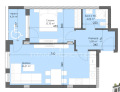
Апартаментът е ситуиран на 2-ри жилищен етаж и разполага със застроена площ от 74 кв. м. , разгърната в следното практично разпределение: входно антре, спалня, хол с кухненски бокс, баня с тоалетна, тераса и изба.
Комплексът се състои от две сгради в близост до Пловдивски университет. Предвидено е да има ресторант, сладкарница, магазини, детска площадка, зелени площи. Има възможност за закупуване на подземни и надземни паркоместа. Апартаментите се издават до БДС на ш. з. Дограма с троен стъклопакет Reynaers CS 77. Мазилка 'Баумит', вентилируема фасада от панели - дърво, парапет от ковано желязо. Общите части ще бъде модерно и стилно завършени спрямо най-актуалните тенденции на пазара.
За оглед на това и други атрактивни предложения, не се колебайте да ни потърсите на посочения телефон или да ни изпратите данните си чрез формата за запитване на сайта. Реф. номер:777.











