Продава 2-СТАЕН, град София, Кръстова вада ID 19796264
Брокер
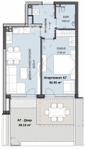
Обща информация
Допълнителна информация
SOUTH END 3 Етап 3, Сгради 4 и 5
Две свободностоящи жилищни сгради с общо 76 апартамента от двустайни до четиристайни, включително партерни жилища със собствени дворчета и апартаменти с уникални покривни тераси. Парцелът е 2863 кв. м с озеленени пространства, места за отдих и детска площадка. Сградите са със стартирало строителство, концепция за затворен комплекс, но без такса поддръжка.
Сградите са разположени в най-предпочитания и бързо развиващ се квартал на София, в непосредствена близост до метростанция Витоша , бъдеща метростанция, автобусна спирка, Paradise Center, Южен парк, хипермаркети Фантастико и Лидъл , с удобен достъп до центъра на града.
Качество и комфорт:
Сградата се изгражда по най-високи стандарти, с подбрани материали и доказани партньори.
Фасада: модерна комбинация от мазилка и вентилируема система
Отопление: подово отопление на газ и изводи за климатици тип сплит система
Стартирало строителство в най-предпочитания и бързо развиващ се квартал
Богато озеленено дворно пространство с места за отдих и детска площадка
Разнообразие от апартаменти от дворни жилища до пентхауси с покривни тераси
Модерна фасада и висококачествени материали
Подово отопление на газ и подготовка за климатици сплит система
Без такса поддръжка
Обади се сега и цитирай този код 669106








