Продава 2-СТАЕН, град Пловдив, Христо Смирненски ID 20007400
83 000 €162 333.89 лв.Цената е с включено ДДС
Посетена 2 пътиПубликувана в 12:32 на 09 Февруари 2026
Обща информация
Квадратура70 m2
Етаж5-ти
Допълнителна информация
🔥 ЕКСКЛУЗИВНО!
🏡 Стилен двустаен апартамент с функционално разпределение, подходящ за лично ползване или инвестиция в нова сграда в кв. Христо Смирненски.
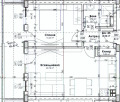
🔑 Разпределение:
➤ входно антре
➤ дневна с кухня и трапезария
➤ спалня
➤ баня с тоалетна
➤ балкон
📌 Огледи с предварителна уговорка
📞 За оглед и допълнителна информация - обадете се сега ✅
✨ Deluxe Homes - коректен партньор в сделките с недвижими имоти
✔ Юридическо съдействие
✔ Кредитиране
✔ Пълно обслужване до сделка
🔍 Код на обявата: 143341
Особености
Асансьор • Видео наблюдение • Контрол на достъпа • Охрана • Саниран • В затворен комплекс • Тухла




