Обща информация
Допълнителна информация
Оферта 5801604
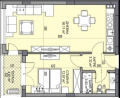
ERA Вива предлага просторен двустаен апартамент в новострояща се сграда, разположена на пешеходно разстояние от Пловдивски панаир. Имотът е с обща площ 77. 43 кв. м и е разположен на пети жилищен етаж. Състои се от: просторна дневна, спалня с южно изложение /и двете помещения са с излаз на обща тераса/, баня с тоалетна, антре и мазе. Изложение: юг. Луксозни общи части. Сградата ще бъде въведена в експлоатация м. юни 2027 г. Този имот предлага уникална комбинация от стил, удобство и локация, която ще удовлетвори Вашите изисквания. Сградата се намира в непосредствена близост до търговски обекти, училище, детска градина, спирки на градския транспорт, зони за разходка и почивка. Свободно паркиране. Предлагаме опция за закупуване на подземни и наземен гараж или паркомясто.
Инвестицията в недвижим имот е най-сигурният начин да съхраним парите си от инфлационно обезценяване. ЕРА България е регистриран кредитен посредник към БНБ и предоставя безплатна консултация и съдействие за най - изгодна оферта при финансиране на избрания от Вас имот, както и цялостна юридическа проверка на имотите, които предлагаме.









