Брокер
Обща информация
Допълнителна информация
Уважаеми клиенти,
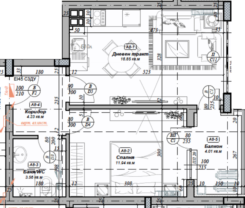
предлагаме Ви за продажба двустаен апартамент в нова, модерна сграда с Акт 16, отличаваща се с високо качество на изпълнение и внимание към детайла. Жилището е със застроена площ от 48 кв. м. и завършено до ключ готово за нанасяне веднага след покупката.
Разпределението е функционално, удобно и както следва: просторна дневна 16 кв. м. , с достатъчно място за кухня и кът за отдих, светла спалня 12 кв. м. , осигуряваща комфорт и тишина, баня с тоалетна 3. 5 кв. м. , изградена с висококачествени материали, балкон 4 кв. м. , с източно изложение, осигуряващо приятна сутрешна светлина и прохладни следобеди. Към апартамента има и изба 2. 5 кв. м.
Сградата разполага с асансьор, контрол на достъпа и поддържани общи части. Локацията предлага тиха и спокойна среда, съчетана с удобен достъп до транспорт, магазини, училища и фитнес.
Този апартамент е отличен избор както за собствено ползване, така и за инвестиция с цел отдаване под наем.
Възможност за закупуване на паркомясто в подземен гараж.
За повече информация и оглед се свържете с нас 0884788229
Реф. номер: 90049



