Брокер
Клиентски център АДРЕСЛичен телефон: 088 21 21 450
Посетена 4 пътиПубликувана в 14:21 на 06 Ноември 2025
Обща информация
Квадратура133 m2
Етаж1-ви
ГАЗДА
ТEЦНЕ
Допълнителна информация
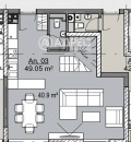
Мезонет, етаж 1 и 2
Първо ниво - дневна, трапезария с кухненски бокс 40. 9 кв. м. ,баня с тоалетна, фоайе , стълба - 57. 38 кв. м.
Второ ниво - спалня16. 6кв. м. ,стая 14. 10 кв. м. , две бани с тоалетни , коридор , балкон - 75. 98 кв. м.
озеленена покривна тераса - 52. 00 кв. м.
Етапи на строителство: Акт 14 м. октомври 2025г. ,Акт 15 м. юни 2027г. , Акт 16 м. септември 2027 г.
Начин на плащане 10% на Предварителен договор , 65% след Акт 14 , 25 % след Акт 15
кв. Хладилника
Петнадесететажна жилищна сграда
МОЛ Парадайз , метростанция Витоша
Обади се сега и цитирай този код 665098
Особености
Асансьор • С гараж • Тухла
Страница на обявата
Брокер
Клиентски център АДРЕСЛичен телефон: 088 21 21 450




