Посетена 39 пътиПубликувана в 12:18 на 05 Януари 2026
Обща информация
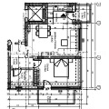
Квадратура76 m2
Етаж7-ми
Допълнителна информация
реф. 18015 Предлагаме Ви ДВУСТАЕН апартамент в новоизграждаща се модерна сграда разположена в един от най-предпочитаните квартали на Пловдив. Жилището се състои от просторен хол с кухненски бокс, спалня, две тераси, баня с тоалетна, антре и избено помещение. В близост са разположени детски градини, училища, хранителни магазини, удобен градски транспорт до всяка една точка на града и др. АГЕНЦИЯТА СЪДЕЙСТВА С ВСИЧКО НЕОБХОДИМО ДО ПРИКЛЮЧВАНЕ НА СДЕЛКАТА!!!
На разположение съм за всякакви въпроси и консултации, за целта се свържете с мен на телефон:
Георги Присадников
0890522227
Особености
Асансьор • Тухла




