Продава 2-СТАЕН, област Пловдив, гр. Асеновград ID 20557260
Обща информация
Допълнителна информация
Компания X представя на Вашето внимание двустаен апартамент в Асеновград.
МЕСТОПОЛОЖЕНИЕ: Районът около Асеновград е обграден от красива природа, включително планините Родопи. Това прави града атрактивно място за туризъм и почивка на открито. В Асеновград се намира крепостта Асенова крепост, която е един от най-големите и най-значимите средновековни крепости в България.
СТРОИТЕЛСТВО: Апартаментът се намира на 1-ви, етаж, в сграда ново строителство.
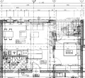
РАЗПРЕДЕЛЕНИЕ: Жилището разполага с площ от 69 кв. м. , разпределена по следния начин: входно антре, дневна с кухненски бокс, спалня, баня с тоалетна и лоджия
СЪСТОЯНИЕ: В строеж.
Заповядайте да Ви го покажем. Използвайки нашите услуги Вие ще превърнете закупуването на новия си дом в едно приятно изживяване, ще получите персонален консултант, съдействие при кандидатстване за кредит от всички банки в България, интериорни дизайнери и екип, който да се погрижи за нужните документи по Вашата сделка. На Ваше разположение сме всеки ден, от понеделник до неделя от 09:00 до 20:00ч. Възползвайте се от безплатна консултация в наш офис, където ще ви спестим време и ще ви запознаем с всички актуални имоти в България, отговарящи на Вашето търсене. Свържете се с нас на 0887779990 или на 0884060990 и цитирайте кода към имота: 1061- 30957

