Брокер
Обща информация
Допълнителна информация
Референтен номер: 1919.
Реф. номер: 1919
МАЛКА БУТИКОВА СГРАДА! УТВЪРДЕН НА ПАЗАРА СТРОИТЕЛ ! БЕЗ ИДЕКСАЦИЯ НА ЦЕНАТА !
Лайт Хоум имоти има удоволствието да ви представи супер луксозна малка сграда в район Южен .
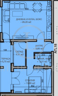
Представяме ви двустаен апартамент в нова супер луксозна малка сграда от утвърден строител в един от най-бързо развиващите се и предпочитани райони на Пловдив – Южен.
Основни характеристики на имота:
- Площ: 86. 80 кв. м
- Разпределение: Голям хол с кухненски бокс, просторна спалня, баня с тоалетна, входно антре , тераса и склад в апартамента .
- Вид строителство: Тухла (2027г. )
- Изложение: югозапад
- Етажност: 5ет. от 5 етажа (асансьор)
- Паркиране: Възможност за закупуване на гаражи и паркоместа .
Изискана малка бутикова сграда, разположена в район Южен , съвършенство във всеки детайл . Комплекса предлага уникален стил и комфорт, който задоволява и най-взискателните купувачи, разполага с изключително функционални и просторни двустайни , тристайни и четиристайни апартаменти . Сградата е проектирана с висококачествени материали и модерни технологии, за да осигури максимален комфорт и уют.
За повече информация и организиране на огледи, моля, свържете се с нас на посочения номер, като ще Ви е необходим следният референтен номер: 1919
Лайт Хоум имоти е доверен партньор на най-големите банкови институции в страната и съдейства за преференциални условия при нужда от кредитиране. Ще получите юридическо съдействие през целия процес на сделката, както и съдействие при подготовка, подаване и получаване на всички необходими документи за сделката.




