Обща информация
Допълнителна информация
PSI Properties предлага за продажба комплекс от къщи.
Къщите са част от нов проект насочен изцяло към качеството и комфорта на новите собственици, като имат възможност сами да изберат варианта за изпълнение и да обзаведат, както желаят новия си дом. Във всеки един от вариантите за изпълнение са заложени, качествени материали, а цената зависи от вашите нужди и желания, за да имате всичко нужно и нищо излишно. Строителните дейности ще бъдат изпълнени от строител с над 20 години опит, който е известен с качеството на работата си. Този комплекс е умният избор за всеки, който търси дом на тихо и спокойно място само на минути от гр. Пловдив.
- Тип имот: Къща 🏡
- Локация: с. Първенец, област Пловдив 📍
- Ново строителство, планирано завършване 2026 г. 🆕
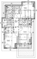
- Обща площ: 212. 25 кв. м 📐
- Двор: 504кв. м.
Разпределение:
- Първи етаж: кабинет/спалня, баня с тоалетна, килер, техническо помещение, просторна дневна с кухня и трапезария, излаз към веранда. Под стълбите е обособен допълнителен килер към кухнята 🍽 ️
- Втори етаж: три самостоятелни спални, едната от които с тераса, баня с тоалетна, перално помещение, главната спалня е със собствена баня и дрешник.
Качество и варианти за изпълнение:
- Изпълнител с над 20 години опит без компромис в изпълнението на всички етапи на строителството. 🛠 ️
- Висока енергийна ефективност по-ниски сметки и по-комфортна среда във вашият нов дом.
- Във всеки вариант за изпълнение са заложени тухли на Винербергер от високия клас с подобрени топлоизолационни качества
- Във всеки вариант за изпълнение е заложена двойна хидроизолация на основите
- Топлоизолацията може да бъде изпълнена или с качествен EPS, или с вата с висока плътност.
- Дограмата е немска с троен стъклопакет, като може да се избира между 5 и 7 камерна.
- Водоснабдяване: права вода (водопровод), като всяка къща разполага със собствена бустер помпа за идеално налягане и филтри за допълнително пречистване на водата. 💧
- Канализация: индивидуална аеробна пречиствателна станция за обратните води - пречиства на около 98% отпадните води и няма неприятни миризми.
- Къщите ще бъдат издадени на мазилка и замаска.
- Функционална планировка с много светлина и удобни помощни помещения. ✨
- Готовност за модерен семеен живот: повече място, повече комфорт, по-ниски разходи за енергия. 🏠
- При желание за отопление и охлаждане с термопомопа има възможност за изпълнение със залагане на подово отопление и изходи за конвектори.
Цена: Цената в момента варира от 1150 до 1250 евро/кв. м. без ДДС в зависимост от варианта за завършване, който изберете.
За района:
- С. Първенец предлага спокойствие и зеленина в подножието на Родопите, само на минути от Пловдив идеален баланс между градски удобства и природата. 🌳 🚗
- Добра инфраструктура с магазини и удобен достъп до града, както и редовни транспортни връзки. 🛒 🚌
Гъвкави схеми на плащане, както и отстъпки при различните схеми на плащане.
За повече информация може да се свържете с нас на посочения телефон!






