Обща информация
Допълнителна информация
🏡 FOHAR Модерен живот в полите на Витоша!
📍 Локация: FOHAR е съвременен жилищен комплекс, разположен на ул. Кумата 77 основната връзка между кв. Бояна и кв. Драгалевци.
Мястото съчетава спокойствието и чистия въздух на планината с удобството на бързия достъп до центъра на София.
Комплексът предлага богато озеленени пространства, детски площадки, зони за отдих, фитнес, ресторант, контролиран достъп и 24-часова сигурност всичко необходимо за комфортен и сигурен живот.
✔ ️ Имотът е собственост на юридическо лице, продава се директно от собственик, без комисионна.
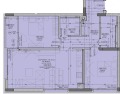
🏘 ️ Описание на имота: Продава се тристаен апартамент с обща площ 120, 67 кв. м
Застроена площ: 96, 89 кв. м
Статут: Апартамент
Етаж: 3
Изложение: изток/юг
Сграда: Въведена в експлоатация, с издаден Акт 16
📐 Разпределение: Жилището се състои от преддверие, две бани с тоалетни, дневна с кухненски бокс, две спални и тераса тип лоджия с излаз от дневнатата и една от двете спални.
Функционално и удобно разпределение, осигуряващо светлина и комфорт.
🌡 ️ Отопление: Климатици / Парно на газ
🔑 Състояние: Апартаментът се издава на шпакловка и замазка, готов за персонализиране според вкуса на новия собственик.
📱 Умно жилище: Инсталирана е Smart Home Ready система, която позволява управление на осветлението, отоплението и сигурността директно от мобилно устройство.
💶 Цена: 390 970, 80 EUR с ДДС
🚗 Паркомясто: Възможност за закупуване на паркомясто на цена от 27 000 EUR без ДДС.
📞 Контакт: Камелия Каменова
0879 45 86 90




