Брокер
Обща информация
Допълнителна информация
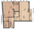
ДВЕ СТАИ / ДВЕ САНИТАРНИ ПОМЕЩЕНИЯ ! ДВА БАЛКОНА ! ТОП ЛОКАЦИЯ ! ОТЛИЧНА ИНВЕСТИЦИЯ !
Представяме ви ДВЕ ОТДЕЛНИ САМОСТОЯТЕЛНИ БОКСОНИЕРИ / ЕДНОСТАЙНИ АПАРТАМЕНТА в нова сграда в централната част на града. Сградата е разположена на пешеходно разстояние от Катедралата, Центална поща, Районен съд - Варна и други административни и офис центрове.
🔹 Етажност: 2-ри етаж от общо 7;
🔹 Площ: 56 кв. м;
🔹 Вид строителство: нова сграда от 2025г. Очаква се АКТ 16 до 07. 2026г.
🔹 Изложение: Юг / Запад;
🔹 Завършване по БДС - на шпакловка и замазка, с поставена ПВЦ дограма и блиндирана входна врата, с възможност за завършване 'до ключ'.
🔹 Възможност за закупуване на паркомясто.
🔹 Разпределение: ДВЕ ОТДЕЛНИ СТАИ, всяка от който със самостоятелен санитарен възел и кухненски кът.
Забележка: Приложените снимки и визуализации са илюстративни и имат за цел да Ви дадат максимално добра и идейна представа за общия вид и разпределението на имота!
Кантора 52 съдейства на своите клиенти във всеки аспект на придобиване и експлоатация на имоти: нотариалното изповядване на сделката, отпускане на кредит с преференциални условия към всички водещи банки на пазара, както и за ремонтни и довършителни дейности на преференциални цени.
📞 ОБАДИ СЕ СЕГА:
📞 0885252556 - Драгомира Даскалова






