Продава МАГАЗИН, град Варна, Планова промишлена зона ID 21705647
608 000 €1 189 144.64 лв.Цената е без ДДС
Посетена 55 пътиПубликувана в 15:11 на 12 Февруари 2026
Обща информация
Квадратура392 m2
Допълнителна информация
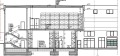
В продажба търговско помощение с височина 6. 50 метра. Височината позволява удвояване на квадратурата след Акт 16 с полуниво на 3. 2 м. Товароносимостта е 900кг/м2. Издаване: шлайфан бетон и инсталации, офис -гипсокартон, WC - на тапа. Помещенията са подходящи за складове, мострени зали, производство, търговия. Конструкция стоманобетонна, фасада санвич панели.
Над помещението ще има още два етажа изградени. Отлична инфрактура, транспортна достъпност, автобусна спирка. Тир достъп. Възможност за закупуване на паркоместа пред сградата за лично ползване и клиенти.
Продава без комисион за купувача.
Особености
Тухла

